Host & Stay - The Lobster Holiday Inn
Preview only — see all hotel photos
See all 19 photos
Mostra hotel sulla mappa
Host & Stay - The Lobster Holiday Inn
Situato abbastanza vicino all'Host & Stay - The Lobster Holiday Inn Redcar, a 3 stelle, gli ospiti possono arrivare velocemente a Sacred Heart Catholic Church. Inoltre, in tutta la struttura troverai il Wi-Fi.
Il South Gare Lighthouse è a 4 km da questo hotel, mentre Zetland Lifeboat Museum and Redcar Heritage Centre si trova a soli 13 minuti a piedi. Una passeggiata di 25 minuti dall'Host & Stay - The Lobster Holiday Inn ti porterà nel cuore di Redcar. Il Kirkleatham Museum è situato a 3 km da questo hotel. Questo alloggio è vicino alla fermata dell'autobus Redcar Clock.
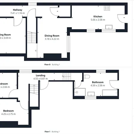
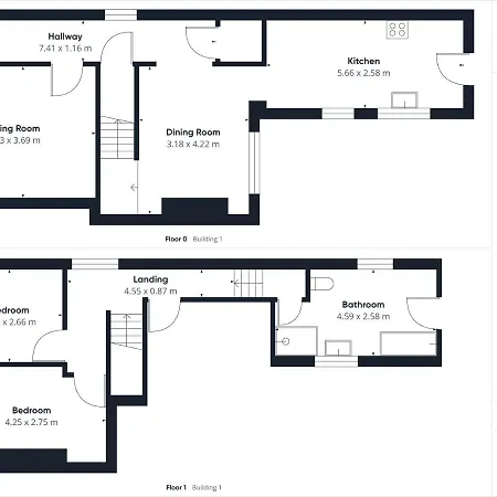
Le camere offrono un salottino e una zona pranzo, con uno scrittoio per il comfort degli ospiti. La TV a schermo piatto con canali satellitari, e certe comodità, come la possibilità di stirare sono anche forniti. I bagni dispongono di un bagno con WC separato e una doccia e di altre comodità, come essiccatori e teli da bagno.
Il ristorante Seabreeze, che offre un vasto assortimento di piatti, si trova accanto all'Host & Stay - The Lobster Holiday Inn Redcar.
Servizi
Top Servizi
- Wi-Fi
Servizi
- Wi-Fi
- Bollitore elettrico
- Asciugatrice
- Area soggiorno
- Tavolo da pranzo
- Set da stiro
- Lavatrice
- TV a schermo piatto
- Pavimento in moquette
Politica
Mappa
Attrazioni locali
Aeroporti
- Aeroporto di Durham Tees Valley (32 km)